All Projects
Elevate Education — Reception & Waiting Elevate Education Office · Yangon, 2025

Location

San Chaung Tsp, Yangon

Type

Commercial Office Interior

Size

3,020 sqft

Completion

2025

Elevate Education
Office — Level 7

Elevate Education is a forward-thinking consultancy empowering Myanmar students to pursue higher education abroad, particularly in Thailand. The office interior is designed to be bold, creative, and engaging — appealing directly to a young, aspirational audience while incorporating the brand's signature blue throughout the space.

The layout balances functionality and experience: efficient workstations, a welcoming waiting area, private consultation rooms, and a cozy coffee bar for breaks. Dedicated brainstorming zones and a relaxing staff lounge are thoughtfully integrated to support collaboration, creativity, and well-being.

Commercial Interior 3D Visualisation Space Planning Concept Development Renovation & Decoration Project Management

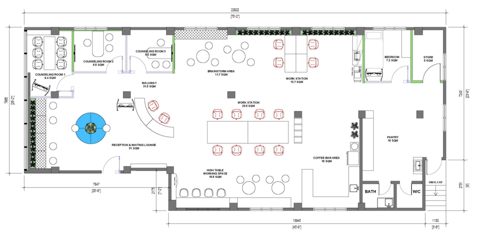
Floor Plan

Elevate Education Floor Plan

3D Overview

3D Bird's Eye View

Reception & Waiting Area

Reception Area — Feature Tree
Reception Desk Overview

Consulting Rooms

Consulting Rooms Corridor
Consulting Rooms — Elevate Signage

Meeting Room

Meeting Room

Workstation Area

Open Workstation — Long Table
Workstation — Quiet Zone

Brainstorming & Lounge

Brainstorming Lounge — Be Open To All Ideas
Brainstorming Seating Area

Staff Lounge

Staff Lounge — Blue Accent Wall

Coffee Bar & Pantry

Coffee Bar and Pantry